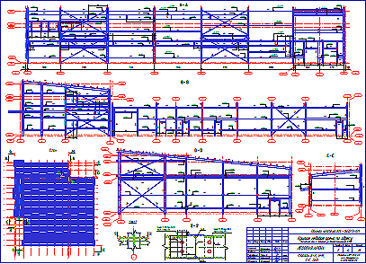
| Габариты, м | 60м x 52м |
|
| Масса | 402 019 кг | |
| Количество деталей | 10 875 | |
| Высота сооружения | 21 м | |
| Назначение |
Спортивная школа |
|
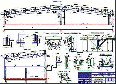
| Документация | Разработка КМ, КМД, ППР, КЖ |
| Габариты | 85 м x 32 м | |
| Масса | 212 019 кг | |
| Количество деталей | 12 911 | |
| Высота сооружения | 22 м | |
| Назначение | Агрокомплекс | |
| Документация | Разработка КМ, КМД, ППР, КЖ |
- 1
- 2























































































































































