Проектирование бункеров

Проектирование бункеров

Конструкторское бюро «TOPENGINEER» работает с объектами любого уровня, в том числе и с такими объектами, как бункеры. Мы готовы разработать уникальный проект, который воплотит все требования существующих стандартов и все пожелания заказчика. Наш опыт работы, безупречная квалификация инженеров, умение работать с современными программами открывают перед нами и нашими заказчиками неограниченные возможности проектирования современных объектов. Оформить заявку и заказать проектирование бункера вы можете незамедлительно!

Проектирование бункеров - Разработка КМД

Услуги проектирования бункеров

Что касается работы с объектами высокого уровня сложности, то наше конструкторское бюро можно смело назвать лидером в этой области. Наши инженеры спроектировали множество объектов самого разного назначения, которые расположены на территории России и за её пределами. Над всеми проектами нашего бюро трудятся специалисты с высокой квалификацией и обширным практическим опытом. Наше бюро создает все условия для грамотной и оперативной работы. Благодаря специальному оборудованию и программному обеспечению наши инженеры имеют возможность применять технологии трехмерного проектирования, которые практически сводят к нулю ошибки проектирования. 3D модели дают возможность не только комфортно работать специалистам, но и наглядно демонстрировать процесс заказчикам. На сегодняшний день в бюро «TOPENGINEER» предлагает широкий спектр услуг:

  • Разработку документации – полностью или частично
  • Проектирование: генеральное, архитектурное
  • Генеральный подряд и пр

Узнать подробности о нашей деятельности и задать свои вопросы вы можете нашим менеджерам по телефону, указанному на сайте. 

Бесплатная оценка вашего проекта

    Перетащите файл сюда или Загрузите

    Проектирование бункеров - Разработка КМД

    Как заказать проектирование бункеров?


    Менеджеры рады принять вашу заявку по нашему многоканальному телефону или в письменном виде. для работы нам необходимы ваши контактные данные, характеристики объекта и особые требования. О том, как правильно заполнить заявку, вы можете узнать по телефону. Наши менеджеры подробно разъяснят интересующие вас моменты. Полученная заявка на проектирование попадает к нашим специалистам, которые проводят оценку сроков и стоимости на основании сложности и объема необходимых работ. Эти данные служат основанием для коммерческого предложения, которое направляется заказчику.

    Проектирование бункеров - Разработка КМД

    Чертежи при проектировании бункеров

    Следующие комплекты документации в обязательном порядке понадобятся при проектировании бункеров:

    • КМ
    • КМД
    • КЖ

    В зависимости от объекта и требований также может понадобиться разработка и другой документации. Например, разработка ППР, АЧ и пр. Заказчик может узнать точный состав документации из коммерческого предложения.

    Проектирование бункеров - Разработка КМД

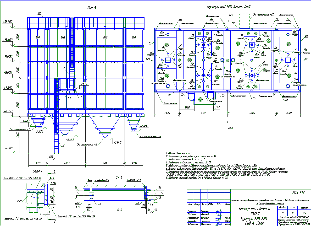
    Пример проектирования бункера

    Пример работы наших специалистов вы можете посмотреть здесь. Это трехмерный проект бункера, разработанный конструкторским бюро «TOPENGINEER». Заказывая проект бункера, помните, что это объект повышенной сложности, и работать над проектом должны только высококлассные специалисты. В нашем бюро работа над проектом будет вестись в формате 3D, что позволит обеспечить безошибочный результат.

    Проектирование бункеров - Разработка КМД

    Сроки проектирования бункера

    На основе предоставленных данных специалисты бюро установят сроки проектирования бункера. При необходимости сроки могут быть сокращены, работа обретет статус срочной, что увеличит её стоимость. Оценка сроков обычно занимает один рабочий день, но в случае, если к объекту предъявляются особые требования, оценка может занять до нескольких дней. Результаты оценки и окончательные сроки будут указаны в подготовленном для заказчика предложении.

    Проектирование бункеров - Разработка КМД

    Стоимость проектирования бункера

    Оценка сложности проводится на основании следующих параметров:

    • Уровень сложности
    • Объемность работ
    • Уровень занятости разработчиков
    • Наличие особых пожеланий заказчика

    Как и результаты оценки сроков, финальная стоимость находит отражение в предложении для заказчика.

    Проектирование бункеров - Разработка КМД

    Как выдается проект бункера?

    Наше бюро предлагает заказчикам два варианта получения готового заказа: электронная версия или печатный вариант. Формат PDF является оптимальным вариантом, так как позволяет просто и эффективно работать с проектом. Трехмерная модель бункера тоже может быть выдана с готовым проектом.

    Проектирование бункеров - Разработка КМД

    Услуги, сопутствующие проектированию бункеров

    Так как бункер является объектом повышенной сложности, мы рекомендуем заказывать полный комплекс услуг от конструкторского бюро «TOPENGINEER». Это не только обеспечит безупречный результат, но и позволит снизить стоимость непосредственно проектирования практически до нуля. Всем заказчикам предлагаются проектирование, производство и монтаж конструкций из металла.

    Проектирование бункеров - Разработка КМД
    Проектирование бункеров - Разработка КМД
    Проектирование бункеров - Разработка КМД
    Проектирование бункеров - Разработка КМД
    Проектирование бункеров - Разработка КМД
    Проектирование бункеров - Разработка КМД
    Проектирование бункеров - Разработка КМД
    Проектирование бункеров - Разработка КМД
    Проектирование бункеров - Разработка КМД
    Проектирование бункеров - Разработка КМД
    Проектирование бункеров - Разработка КМД
    Проектирование бункеров - Разработка КМД
    Проектирование бункеров - Разработка КМД

     

    Согласие на обработку персональных данных

    Настоящим в соответствии с Федеральным законом № 152-ФЗ «О персональных данных» от 27.07.2006 года свободно, своей волей и в своем интересе выражаю свое безусловное согласие на обработку моих персональных данных ООО "СТАЛЬПРОЕКТ" (ОГРН 5117746040583, ИНН 7743840108), зарегистрированным в соответствии с законодательством РФ по адресу: Варшавское шоссе, д. 1, стр. 1-2, , 4 этаж, комн. 39, Москва, Россия, 117105 (далее по тексту - Оператор). Персональные данные - любая информация, относящаяся к определенному или определяемому на основании такой информации физическому лицу. Настоящее Согласие выдано мною на обработку следующих персональных данных:

    • Имя;
    • Телефон;
    • E-mail.

    Согласие дано Оператору для совершения следующих действий с моими персональными данными с использованием средств автоматизации и/или без использования таких средств: сбор, систематизация, накопление, хранение, уточнение (обновление, изменение), использование, обезличивание, а также осуществление любых иных действий, предусмотренных действующим законодательством РФ как неавтоматизированными, так и автоматизированными способами. Данное согласие дается Оператору для обработки моих персональных данных в следующих целях: - предоставление мне услуг/работ; - направление в мой адрес уведомлений, касающихся предоставляемых услуг/работ; - подготовка и направление ответов на мои запросы; - направление в мой адрес информации, в том числе рекламной, о мероприятиях/товарах/услугах/работах Оператора.

    Настоящее согласие действует до момента его отзыва путем направления соответствующего уведомления на электронный адрес info@topengineer.ru. В случае отзыва мною согласия на обработку персональных данных Оператор вправе продолжить обработку персональных данных без моего согласия при наличии оснований, указанных в пунктах 2 – 11 части 1 статьи 6, части 2 статьи 10 и части 2 статьи 11 Федерального закона №152-ФЗ «О персональных данных» от 26.06.2006 г.

    Закрыть