Проектирование нефтяных объектов

Проектирование нефтяных объектов - Разработка КМД

Услуги проектирования нефтяных проектов

Наша компания являет лидером проектирования нефтяных и иных объектов строительства.
В рамках работы с нашей компанией вы можете воспользоваться услугами генерального подряда и генерального проектирования.
Услуга генерального подряда предполагает строительство объекта “под ключ” и предполагает разработку всей строительной документации, сбора всей разрешительной документации, различного рода согласования и сдача объекта в эксплуатации.
Услуги генерального проектирования подразумевают полный комплекс услуг по проектировании, за исключением изготовления и монтажа.
Так же доступны выборочные услуги по разработке строительной документации таких как КМ, КМД, КЖ, ППР, АС, и прочие.
Богатый опыт наших специалистов является гарантией качественно разработанной документации. Просмотреть список работ нашей компании вы можете в разделе ”Портфолио”.
Заказав в нашей компании изготовление и монтаж конструкций вы можете в значительной степени сэкономить на проектной документации.

Как оформляется заявка на проектирование нефтяных объектов

Оформить заявку можно связавшись с нами по телефону горячей линии 8 (495) 215-07-79.
Менеджеры нашей компании ответят на любые интересующие Вас вопросы и помогут оформить заявку на проектирование.
По переданной Вами заявке в течении дня будет выставлено коммерческое предложение с указанием сроков и стоимости всех работ.
При составлении заявки не забудьте передать всю имеющуюся у вас информацию о объекте включая необходимые для работы чертежи.
Письмо необходимо выслать на наш электронный адрес info@topengineer.ru не забудьте оставить контактную информацию для обратной связи.
Менеджер нашей компании свяжется с Вами и сообщит о результатах оценки стоимости и время работ по вашему проекту.


Бесплатная оценка вашего проекта

    Перетащите файл сюда или Загрузите

    Комплекты документации необходимые для проектирования нефтяных проектов

    Наиболее важными комплектами документации являются:

    • КМ- конструкции металлические. Расчетная и графическая часть проекта которая проходит обязательную экспертизу. Этот комплект является обязательным.
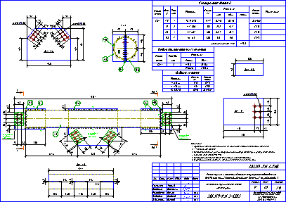
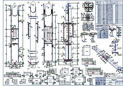
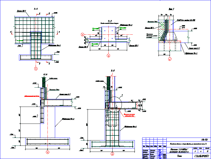
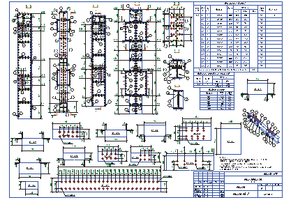
    • КМД-конструкции металлические деталировочные. Комплект необходим на заводе металлоконструкций. Без этого комплекта изготовлением металлоконструкций невозможно ни при каких обстоятельствах.
    • КЖ-Конструкции железобетонные. Комплект обязателен для разработки конструкций железобетонные. Для проектов с металлоконструкциями так же разрабатывается комплект КЖ так как разрабатываются фундаменты в обязательном порядке.
    • ППР-Проект производства работ. Данная документация описывает последовательность монтажа с учетом оптимальной экономической составляющей.

    Так же разрабатываются и иные комплекты по 87 постановлению.

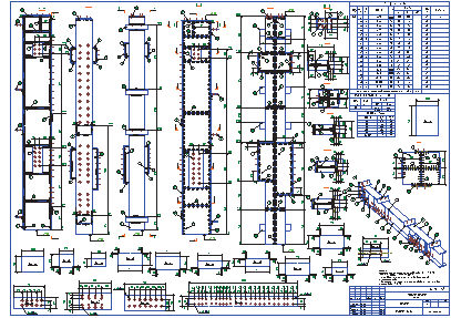
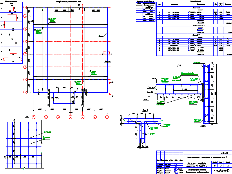
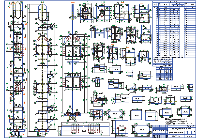
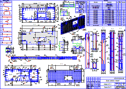
    Проектирование нефтяных объектов - Разработка КМД

    Сколько времени необходимо затратить для проектирования нефтяных объектов

    Количество времени необходимое для проектирования нефтяных и иных объектов, изготовления и монтажа конструкций определяется по результату оценки переданной заявки.
    По результатам оцени всю информацию о времени необходимому на поредение всех работ Вы получите в виде коммерческого предложения.
    Индивидуальный подход позволяет выдавать кротчайшие сроки проектирования.
    Изготовление и монтаж металлоконструкций будут производиться согласно план- графика работ.
    План график составляется с учетом последовательности изготовления и монтажа.

    Стоимость проектирования нефтяных объектов

    Стоимость проектирования любого проекта уникальна и рассчитывается в зависимости от объема проектирования сложности самого проекта и количества необходимых комплектов документации.
    При изготовлении и монтаже усилиями нашей компании стоимости проектной документации значительно снижаются.
    При заказе изготовления и монтажа конструкций стоимость документации снижается значительно.

    Как выдается готовые спроектированные нефтяные объекты

    Проект выдается в формате, согласованном с заказчиком.
    При необходимости выдаются файлы для управления станками с ЧПУ.
    Так же доступен раскрой листового материала.
    Печатная версия выдается в количестве экземпляров согласованном с заказчиком и прописано в договорное.
    Форматы файлов выдачи разнообразные.
    Наибольшую популярность приобрели форматы PDF, DWG, DXF.
    При необходимости выдается полная 3D модель.

    Услуги, наиболее часто требуемые совместно с проектирование нефтяных объектов

    Проектирование нефтяных объектов - Разработка КМД
    Проектирование нефтяных объектов - Разработка КМД
    Проектирование нефтяных объектов - Разработка КМД
    Проектирование нефтяных объектов - Разработка КМД
    Проектирование нефтяных объектов - Разработка КМД
    Проектирование нефтяных объектов - Разработка КМД
    Проектирование нефтяных объектов - Разработка КМД
    Проектирование нефтяных объектов - Разработка КМД
    Проектирование нефтяных объектов - Разработка КМД
    Проектирование нефтяных объектов - Разработка КМД
    Проектирование нефтяных объектов - Разработка КМД
    Проектирование нефтяных объектов - Разработка КМД
    Проектирование нефтяных объектов - Разработка КМД
    Проектирование нефтяных объектов - Разработка КМД
    Проектирование нефтяных объектов - Разработка КМД
    Проектирование нефтяных объектов - Разработка КМД
    Проектирование нефтяных объектов - Разработка КМД
    Проектирование нефтяных объектов - Разработка КМД

     

    Согласие на обработку персональных данных

    Настоящим в соответствии с Федеральным законом № 152-ФЗ «О персональных данных» от 27.07.2006 года свободно, своей волей и в своем интересе выражаю свое безусловное согласие на обработку моих персональных данных ООО "СТАЛЬПРОЕКТ" (ОГРН 5117746040583, ИНН 7743840108), зарегистрированным в соответствии с законодательством РФ по адресу: Варшавское шоссе, д. 1, стр. 1-2, , 4 этаж, комн. 39, Москва, Россия, 117105 (далее по тексту - Оператор). Персональные данные - любая информация, относящаяся к определенному или определяемому на основании такой информации физическому лицу. Настоящее Согласие выдано мною на обработку следующих персональных данных:

    • Имя;
    • Телефон;
    • E-mail.

    Согласие дано Оператору для совершения следующих действий с моими персональными данными с использованием средств автоматизации и/или без использования таких средств: сбор, систематизация, накопление, хранение, уточнение (обновление, изменение), использование, обезличивание, а также осуществление любых иных действий, предусмотренных действующим законодательством РФ как неавтоматизированными, так и автоматизированными способами. Данное согласие дается Оператору для обработки моих персональных данных в следующих целях: - предоставление мне услуг/работ; - направление в мой адрес уведомлений, касающихся предоставляемых услуг/работ; - подготовка и направление ответов на мои запросы; - направление в мой адрес информации, в том числе рекламной, о мероприятиях/товарах/услугах/работах Оператора.

    Настоящее согласие действует до момента его отзыва путем направления соответствующего уведомления на электронный адрес info@topengineer.ru. В случае отзыва мною согласия на обработку персональных данных Оператор вправе продолжить обработку персональных данных без моего согласия при наличии оснований, указанных в пунктах 2 – 11 части 1 статьи 6, части 2 статьи 10 и части 2 статьи 11 Федерального закона №152-ФЗ «О персональных данных» от 26.06.2006 г.

    Закрыть