Проектирование вентилируемых фасадов

Популярность вентилируемых фасадов неуклонно растет.
Причиной такого роста можно считать повышенные эксплуатационные характеристики, которыми обладает этот тип фасадов.
Тем не менее, в деле создания качественного современного вентилируемого фасада большую роль играет грамотное проектирование.
Ошибки проектирования могут привести к снижению положительных качеств вентилируемых фасадов.
Избежать ошибок поможет обращение в профессиональное конструкторское бюро «TOPENGINEER».
Услуги проектирования вентилируемых фасадов
Конструкторское бюро «TOPENGINEER» предлагает комплексные решения в области проектирования.
Проектирование вентилируемых фасадов осуществляется с использованием современных технологий, в том числе 3D моделирования.
Создание промежуточных моделей проекта позволяет оценить успешность всей работы и исключить ошибки проектирования.
Наши специалисты выполнят все необходимые для разработки качественного проекта виды работ и предоставят готовый проект в минимальные сроки.
Наше конструкторское бюро работает с объектами различной сложности.
Мы можем спроектировать вентилируемый фасад для нового или реконструируемого здания.
Все работы ведутся в строгом соответствии с существующими нормами и правилами, а также требованиями заказчика.
Примеры проектирования вентилируемых фасадов
Представляем вашему вниманию пример проекта, созданного нашими специалистами.
Он представляет собой часть здания сложной формы с несущими конструкциями из железобетона и металлическую конструкцию, предназначенную для соединения частей здания.
Согласно техническому заданию для облицовки площади используются алюминиевые панели и металлические рейки.
Для реализации этого проекта применялась программа Tekla Structures, которая позволяет создавать полноценную трехмерную модель проекта.
Для данного проекта была разработана следующая документация:
- Общие виды – 70;
- Сборочные чертежи – 25;
- Чертежи деталировки – 523.

Как заказать проектирование вентилируемых фасадов?
Для заказа проектирования достаточно оставить заявку по телефону или с помощью электронной почты.
Наши менеджеры с удовольствием окажут вам профессиональную консультацию по любым вопросам, касающимся проектирования вентилируемых фасадов.
Желательно предоставить в электронном виде подробные сведения о вашем объекте, а также ваши требования, чтобы специалисты могли немедленно приступить к работе.
Когда ваша заявка будет обработана, вам поступит коммерческое предложение, содержащее основные условия работы.
Типы чертежей при проектировании вентилируемых фасадов
При разработке проекта вентилируемого фасада чаще всего необходимыми комплектами являются:
• КМ, КМД несущих конструкций;
• КМ, КМД несущих конструкций под облицовку;
• КМ, КМД подсистемы вентилируемого фасада;
• КМД облицовочных панелей с общими видами.
Конкретный состав проектной документации будет указан в коммерческом предложении.
Сроки проектирования вентилируемых фасадов
Срок выполнения работ определяется в индивидуальном порядке и зависит от следующих аспектов:
• сложности проекта;
• востава проектной документации;
загруженности специалистов;
• особых требований и т.п.
Наши специалисты прикладывают все усилия для выполнения заказов в минимальный срок без ущерба качеству.
Точные сроки указываются в коммерческом предложении.
Стоимость проектирования вентилируемых фасадов
Так же, как и сроки, стоимость работ определяется в индивидуальном порядке.
Главным образом она зависит от сложности объекта. Детализация стоимости каждого вида работ предоставляется заказчику в коммерческом предложении.
В каком формате выдается готовый проект вентилируемого фасада?
Готовый проект выдается в напечатанном или электронном формате.
Заказчик может выбрать любой удобный для него электронный формат – PDF, DWG и пр. В случае необходимости мы готовы подготовить 3D модель проекта.
Сопутствующие услуги при проектировании вентилируемых фасадов
Наряду с услугами проектирования наше конструкторское бюро готово изготовить и смонтировать металлические конструкции.
Выполнение всего комплекса работ нашими высококвалифицированными сотрудниками гарантирует высокое качество вашего объекта.
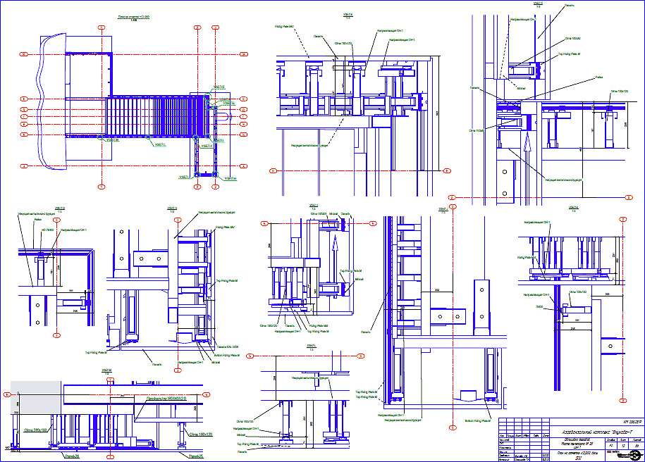
Пример спроектированного нашими специалистами фасада аэропорта Внуково-1

Данный проект является примером создания документации для несущих конструкций под облицовку, подсистему для крепления облицовочных панелей и реек.
Проект представляет собой трехэтажную часть здания сложной формы, несущие конструкции которого выполнены из монолитного железобетона и объемной металлической конструкции, которая соединяет части здания.
По условию технического задания часть площади облицовывается алюминиевыми панелями, а часть – металлическими декоративными рейками.
При этом на деталировках панелей должен быть указан не только цвет, но и направление покраски панелей.
Направление покраски панелей необходимо учитывать из-за неравномерного отражения света от поверхности панелей.
Размеры панелей не должны превышать 6000 x 1200 мм.

Рассмотрим сложности, которые могут возникнуть при проектировании подобного объекта.
1.Большое количество поверхностей, нуждающихся в облицовке.
2.Большое количество стыковых панелей, находящихся под углом друг к другу в двух плоскостях.
3.Использование в проекте двух разных облицовочных материалов, что усложняет раскладку направляющих.
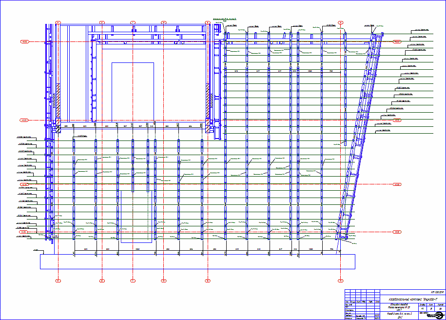
4.Часть фасада вверху здания образует дугообразную кривую, из-за чего направляющие находятся перпендикулярно данной линии, а соответственно, каждая направляющая будет иметь свой уникальный угол наклона.
5.Так как часть поверхностей не перпендикулярна земле, то и чертежи раскладок направляющих, подсистемы и панелей должны быть выполнены в этих плоскостях.

6. Создается несколько комплектов чертежей:
- КМ несущих конструкций здания;
- КМД несущих конструкций здания;
- КМ несущих конструкций под облицовку;
- КМД несущих конструкций под облицовку;
- КМ подсистемы вентилируемого фасада;
- КМД подсистемы вентилируемого фасад;
- КМД облицовочных панелей с общими видами, на которых обозначены все панели с указанием высотных отметок для каждой панели.

При внесении изменений в один из комплектов необходимо согласовывать и изменить взаимосвязанные части в других комплектах чертежей.
Для реализации такого проекта было принято решение использовать программу Tekla Structures.
Эта программа позволяет создать полную трехмерную модель, все комплекты чертежей в одном файле, при этом над проектом могут работать одновременно несколько человек и видеть вносимые изменения другими пользователями в реальном времени.

Первым подготовительным этапом мы создали трехмерную модель железобетонных частей здания и металлическую объемную ферму в центре здания (она выделена зеленым цветом).
После этого необходимо было разработать конструкцию для крепления подсистемы. На этом этапе прорисовываются примерные размеры подконструкции, уточнения вносились по мере разработки непосредственно подсистемы вентилируемого фасада.
Следующим этапом стала разработка подсистемы вентилируемого фасада.
Нанесена раскладка направляющих на все поверхности. Далее была скорректирована несущая конструкция, на которой крепились кронштейны подсистемы.

После этого были прорисованы панели и декоративные рейки, и внесены текущие изменения в несущей конструкции подсистемы.
Когда была сформирована готовая трехмерная модель, стало возможным приступить к созданию чертежей.
Особенностью используемой нами программы является то, что процесс создания чертежей значительно упрощен и автоматизирован.
Чертежи сборок и деталировки каждой детали автоматически создаются в отдельных файлах и заносятся в базу данных чертежей.
Конечно, в чертежи сборок требовалось внести некоторые пояснения, дополнительные разрезы и технические требования.

Были созданы чертежи общего вида для каждой плоскости фасада здания. Часть из них была не перпендикулярна земле.
-КМ несущих конструкций под облицовку.
На чертежах общего вида были нананесены маркировки каждой из сборок и отдельных деталей. Также для каждой из сборок были даны привязки (как высотные, так и в плане).
– КМД несущих конструкций под облицовку.
Комплект чертежей КМД содержит деталировки всех уникальных деталей, входящих в сборки.
– КМ несущих конструкций под облицовку.
На чертежах общего вида нананесены маркировки каждой из сборок и отдельных деталей. Также для каждой из сборок были даны привязки (как высотные так и в плане).
– КМД несущих конструкций под облицовку.
Комплект чертежей КМД содержит деталировки всех уникальных деталей, входящих в сборки.
– КМ подсистемы вентилируемого фасада.
На чертежах отображены размеры каждой направляющей, ее привязки к осям и высотные отметки, нанесено расположение кронштейнов с указанием высотных отметок и типа кронштейна, указанны типы креплений и их привязки к осям.
– КМД облицовочных панелей
Деталировки алюминиевых панелей с указанием направления покраски.

Ниже приведены примеры чертежей общего вида из комплекта – КМ подсистемы вентилируемого фасада.

Вид справа 3D на здание со снятыми панелями и рейками (утеплитель условно не показан)

Вид справа – расположение кронштейнов для крепления направляющих с указанием типа кронштейна и наименование крепежа.

Вид сзади – расположение кронштейнов доя крепления направляющих с указанием типа кронштейна и наименование крепежа.

Вид спереди – расположение и длины направляющих с указанием типа крепежа.

Вид спереди – расположение и длины направляющих с указанием типа крепежа.

Вид спереди – расположение кронштейнов доя крепления направляющих с указанием типа кронштейна и наименование крепежа.

Вид справа – расположение кронштейнов доя крепления направляющих с указанием типа кронштейна и наименование крепежа.

Вид сверху – расположение до панелей.

Вид сзади – расположение и длины направляющих с указанием типа крепежа.

Вид справа – расположение панелей с указанием их маркировки и привязок.

Общий объем документации по этому проекту составил:
- 70 общих видов;
- 25 сборочных чертежей;
- 523 чертежей деталировок.
